Verkocht:Middelsluissedijk OZ 82, 3281 LE Numansdorp - Foto
Verkocht
+66

Middelsluissedijk OZ 82 3281 LE Numansdorp

  • Woonhuis
  • 4 kamers
  • 3 slaapkamers
  • 1 badkamers
  • Bouwjaar 1938
  • 1.493 m² perceeloppervlakte
  • 95 m² gebruiksoppervlakte
  • C Energielabel C

Beschrijving

Romantische 'Feel Good' woning met een prachtig uitzicht en nog veeeeeeeeel meer! Dit had u vanaf de dijk niet kunnen vermoeden. We zijn er al zo vaak langsgereden zonder dat deze woning opviel.

Ook bij deze mooie originele dijkwoning hebben de 'blikvanger' op Funda en het gebruik van dronefotografie hun absolute meerwaarde. Met deze vorm van fotografie leggen we vast en tonen we wat vanaf de dijk niet zichtbaar is, namelijk een ontzettend gaaf, sfeervol en romantisch 'jaren 30' dijkhuis (bouwjaar 1938).
De woning is flink uitgebouwd. We starten met de toffe veranda, hier geniet u met een verse kop koffie van het prachtige uitzicht, de fijne vlakke, grote tuin met onder meer een jacuzzi, een lekkere grote mancave/schuur van ruim 100 m² (16.92 x 6.18 binnenwerks) biedt gigantisch veel mogelijkheden. Aan de dijkzijde zijn op eigen grond mooie parkeergelegenheden gemaakt, waarop u gemakkelijk 8 auto's kwijt kunt.

Aan de achterzijde heeft u echt alle vrijheid die u zich maar kunt wensen. U kijkt in haar volle glorie uit over het voor het Nationale Landschap 'De Hoeksche Waard' zo mooie kenmerkende zogenaamde 'vlakke polderlandschap'. Het oog reikt tot aan de Schuringsedijk toe! De grote tuin is zo diep, de zonligging is hierdoor minder relevant. Voor degenen die het toch willen weten, die kan ik echt geruststellen. De tuin ligt volledig op het zuiden, DE zonligging voor zonaanbidders! Zet uw tuinset gereed en geniet.

‘Het geheel’ zal worden geleverd op circa 1500 m² eigen grond (de fotograaf had de instructie niet goed begrepen, dat ook het aansluitend gelegen 920 m² grote perceel aan linkerzijde van de schuur mee verkocht wordt, dat is iets minder goed in beeld gebracht).

De woning is voorzien van een energielabel C, 12 stuks zonnepanelen (450 WP elk, gelegd in 2024), airco, dak- en gevelisolatie, volledig van isolerende beglazing en een Remeha Avanta HR ketel uit 2020. Het buitenschilderwerk is in 2024 uitgevoerd. De bruto inhoud is 373 m³, de gebruiksoppervlakte wonen 95 m², de externe bergruimte 105 m² en de gebouwgebonden buitenruimte 8 m².

Met de auto rijdt u in nog geen 5 minuten naar het mooie historische centrum met alle winkels voor de dagelijkse benodigdheden onder meer (Hema, AH, Plus Kruidvat) en een aantal exclusievere/speciaalzaken (onder meer een chocolaterie, 'delicatessen bakker De Verleiding', slager Bouter, De Kaashoeve en de naastgelegen mooie groentewinkel) en tal van leuke eet- en drinkgelegenheden. In nog geen 3 minuten rijdt u op de A29 richting Rotterdam en Antwerpen. In de directe omgeving vindt u tal van prachtige wandel- en fietsroutes, een schitterende 18 holes golfbaan en watersport faciliteiten. Wilt u eens iets anders en niet te ver weg, dan rijdt u binnen 10 minuten naar het romantische vestingstadje Willemstad.

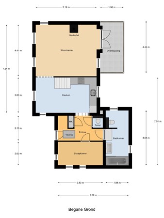
Volgens goed Hoeksche Waards gebruik betreedt u de woning via de achterdeur en de indeling is dan ook 'in die volgorde beschreven’. Indeling: via de stijlvolle veranda (ca. 450 x 200) bereikt u de openslaande deuren, via welke u rechtstreeks binnentreedt in de knusse en romantische zitkamer (519 x 441) met gezellige houtkachel, fraaie oude vloerdelen (onder de vloer bevindt zich een ruime droge kelder van 4.42 x 1.12 m. welke via een luik bereikt wordt), stalramen en een balkenplafond. Via de woonkamer heeft u toegang tot de woonkeuken (519 x 303) met nette hoek inbouwkeuken v.v. apparatuur, de trap naar de verdieping en een toog naar de uitbouw.

Vanuit de keuken betreedt u eerst de hal met de voordeur (alleen door collectanten en 'boodschappers van goed nieuws' te gebruiken), de meterkast (2024), het toilet, toegang tot de slaapkamer (383 x 200) en de drie treden lager gelegen badkamer (469 x 194) met ligbad (met spatscherm), badkamermeubel, wastafel, sanibroyeur toilet en afvoeren t.b.v. wasmachine/wasdroger.

Er is in deze zelfde hal door middel van een losse ladder toegang tot de royale bergzolder met c.v.-opstelling en omvormer zonnepanelen.

Op de verdieping (met aan achterzijde een dakkapel over de maximale breedte) bevinden zich een supergave ouderslaapkamer (432 x 388) met airco en een leuke derde slaapkamer (378 x 295/200), beide kamers bieden een fenomenaal uitzicht over het landschap en hebben bergruimte achter de knieschotten.

We willen u alvast waarschuwen, het maken van een afspraak voor bezichtiging is geheel op eigen risico, want de kans is zeer groot dat u na de bezichtiging echt niet meer terug naar huis wil.

Kaart

Kenmerken

Overdracht

Referentienummer
06969
Vraagprijs
€ 650.000,- k.k.
Inrichting
Niet gestoffeerd
Inrichting
Niet gemeubileerd
Status
Verkocht
Aanvaarding
In overleg
Aangeboden sinds
Zondag 22 december 2024
Laatste wijziging
Maandag 14 juli 2025

Bouw

Type object
Woonhuis, eengezinswoning, vrijstaande woning, dijkwoning
Soort bouw
Bestaande bouw
Bouwperiode
1938
Dakbedekking
Dakpannen
Type dak
Zadeldak
Isolatievormen
Dakisolatie
Grotendeels dubbel glas
HR-glas
Muurisolatie
Spouwmuren

Oppervlaktes en inhoud

Perceeloppervlakte
1.493 m²
Woonoppervlakte
95 m²
Inhoud
373 m³
Oppervlakte externe bergruimte
105 m²
Oppervlakte gebouwgebonden buitenruimte
8 m²

Indeling

Aantal bouwlagen
2
Aantal kamers
4 (waarvan 3 slaapkamers)
Aantal badkamers
1 (en 1 apart toilet)

Locatie

Ligging
Beschutte ligging
Buiten bebouwde kom
Nabij snelweg
Open ligging
Platteland
Vrij uitzicht

Tuin

Type
Tuin rondom
Oriëntering
Zuiden
Staat
Goed onderhouden

Energieverbruik

Energielabel
C

CV ketel

CV ketel
Remeha Avanta
Warmtebron
Gas
Bouwjaar
2020
Combiketel
Ja
Eigendom
Eigendom

Uitrusting

Aantal parkeerplaatsen
6
Aantal overdekte parkeerplaatsen
2
Warm water
CV-ketel
Verwarmingssysteem
Airconditioning
Centrale verwarming
Houtkachel
Ventilatie methode
Natuurlijke ventilatie
Badkamervoorzieningen
Ligbad
Toilet
Wasmachineaansluiting
Wastafel
Wastafelmeubel
Parkeergelegenheid
Vrijstaande houten garage
Heeft kabel-tv
Ja
Heeft een rookkanaal
Ja
Tuin aanwezig
Ja
Heeft een garage
Ja
Beschikt over een internetverbinding
Ja
Heeft een jacuzzi
Ja
Heeft zonnepanelen
Ja

Kadastrale gegevens

Kadastrale aanduiding
Numansdorp F 461
Perceeloppervlakte
460 m²
Omvang
Geheel perceel
Eigendomsituatie
Eigen grond
Kadastrale aanduiding
Numansdorp F 731
Perceeloppervlakte
920 m²
Omvang
Geheel perceel
Eigendomsituatie
Eigen grond
Kadastrale aanduiding
Numansdorp F 2885
Perceeloppervlakte
113 m²
Omvang
Deel perceel
Eigendomsituatie
Eigen grond