Verkocht onder voorbehoud:Reijerwaardseweg 62, 2991 XD Barendrecht - Foto
Verkocht onder voorbehoud
+55

Reijerwaardseweg 62 2991 XD Barendrecht € 450.000,- k.k.

  • Woonhuis
  • 4 kamers
  • 3 slaapkamers
  • 1 badkamer
  • Bouwjaar 1953
  • 321 m² perceeloppervlakte
  • 110 m² gebruiksoppervlakte
  • E Energielabel E

Beschrijving

Voor het eerst op de markt: mooie hoekwoning met garage, oprit/parkeergelegenheid, atelier en grote vrije tuin met heerlijke veranda en vlonder aan waterpartij

Dit keer geen ‘autoverkoper verhaal over het oude vrouwtje, altijd binnen gestaan en zuinig op geweest’, Ditmaal krijgt u een ander prachtig verhaal voor uw kiezen…. Een waargebeurd verhaal.

Voor het eerst op de markt, je zou het niet verwachten van een woning uit 1953, zeker met bewoners die geboren zijn NA 1953 verwacht je dat niet ... dit is een woning met een rijke familie-/liefdesgeschiedenis. We zullen het vandaag kort houden, dat beloof ik!

In 1953 werd het blokje van 3 woningen (Reijerwaardseweg 62-66) zeer degelijk gebouwd (met spouwmuren) in opdracht van de (groot)ouders van 1 van de verkopers. De ouders van 1 van onze verkopers woonden in 1 van de 3 woningen, de ouders van de andere verkoper, die woonden in de woning er direct naast. Enfin... u voelt 'm al aankomen denk ik..... Buurjongetje en buurmeisje konden het van jongs af aan al goed met elkaar vinden, werden later vriendje en vriendinnetje en hopen over een paar jaar hun Gouden Huwelijksjubileum te mogen vieren.

Dat gaat alleen niet meer gebeuren op dit bijzondere plekje, waar ze samen opgroeiden, trouwden, kinderen kregen en opa en oma werden. Ze zijn nog fief genoeg, ze hoefden niet weg, maar ze stammen nog wel van de generatie die de (helaas steeds meer verdwijnende) spreekwoorden en gezegden nog kent. In dit geval is ‘regeren is vooruitzien’ heel erg van toepassing. Wanneer je het nodig hebt is het er niet, dus moeten we tijdig beginnen met zoeken!

Toen aan het begin van het jaar een toekomst- en levensloopbestendige 'zeer ruwe diamant' met een fantastische tuin te koop kwam hebben ze geen moment getwijfeld. In 9 maanden tijd werd die ruwe diamant al behoorlijk glad geslepen en hebben wij het voorrecht om dit heerlijke plekje ‘onder de rook van Rotterdam’ aan u aan te mogen aanbieden.

De Reijerwaardseweg is een rustige dijk, nummer 62 is gelegen op een kleine 100 meter van de grens met Rotterdam ('daar' is het betaald parkeren, ‘hier' gelukkig niet). Aan de achterzijde geniet je optimale vrijheid en rust en het atelier en de garage bieden de hobbyist, kleine zelfstandige of auto-/motorliefhebber extra mogelijkheden. De bereikbaarheid is uitstekend. Zowel de A15, als de A16 en de A29 liggen op een steenworp afstand. Om een lekker hapje buiten de deur te eten kunt u zowel 'Op Zuid' als in Barendrecht prima terecht. De keuze is reuze!

De woning is voorzien van een Energielabel E en van dubbele beglazing. De Remeha Tzerra Ace, uit 2021, zorgt voor verwarming en warmwater. De gebruiksoppervlakte wonen is 110 m², de bruto inhoud 377 m³, de externe bergruimte 33 m², de gebouwgebonden buitenruimte 13 m² en de totale perceelgrootte is maar liefst 331 m² eigen grond!

De indeling (dijkniveau) is als volgt: entree, hal met toilet, meterkast, trap naar de verdieping en naar het souterrain en toegang tot de gezellige L-vormige woonkamer van ca. 30 m² met open haard en een loopdeur naar het balkon (575 x 225) waarop u de gehele morgen heerlijk kunt genieten van de (opkomende) zon.

Op de verdieping is de indeling als volgt: overloop, mooie ouderslaapkamer (353 x 347), prima tweede slaapkamer (353 x 295 met trap naar de bergzolder). kleinere derde slaapkamer (255 X 194 met vaste kasten) en nette doucheruimte (194 x 151) met douchegelegenheid en wastafelmeubel.

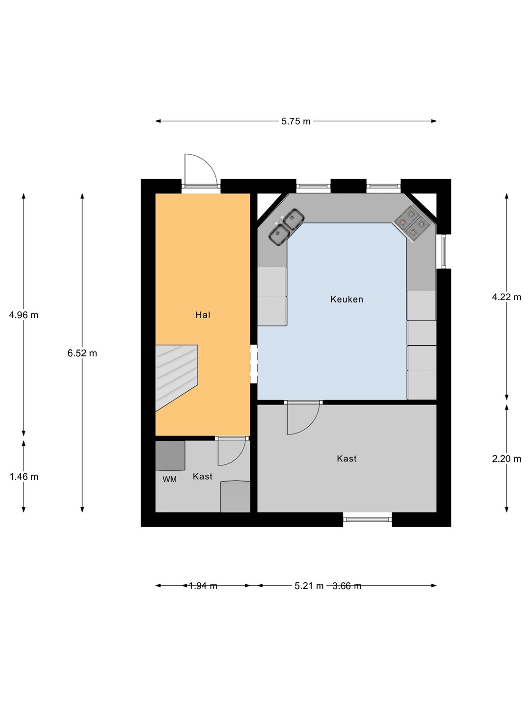
In het souterrain is de indeling als volgt: ruime hal met loopdeur naar de tuin en toegang tot de c.v.-/wasruimte en de woonkeuken (422 x 364 met balkenplafond en keurige hoekinbouwkeuken v.v. -apparatuur) met toegang tot een grote binnenberging (364 x 220).

De gehele woning maakt een verzorgde indruk en heeft een positieve vibe. Wilt u liever alles strak en wit, dan hoeft u niet ver van uw toekomstige woning vandaan te shoppen. De woonboulevard (Reijerwaard) Barendrecht – met 35 woonwinkels - ligt letterlijk op een steenworp afstand!

Kaart

Kenmerken

Overdracht

Referentienummer
07078
Vraagprijs
€ 450.000,- k.k.
Inrichting
Niet gestoffeerd
Inrichting
Niet gemeubileerd
Status
Verkocht onder voorbehoud
Aanvaarding
In overleg
Aangeboden sinds
Dinsdag 11 november 2025
Laatste wijziging
Woensdag 15 april 2026

Bouw

Type object
Woonhuis, eengezinswoning, half vrijstaande woning, dijkwoning
Soort bouw
Bestaande bouw
Bouwperiode
1953
Dakbedekking
Dakpannen
Type dak
Zadeldak
Isolatievormen
Dubbel glas
Spouwmuren

Oppervlaktes en inhoud

Perceeloppervlakte
321 m²
Woonoppervlakte
110 m²
Inhoud
377 m³
Oppervlakte overige inpandige ruimten
2 m²
Oppervlakte externe bergruimte
33 m²
Oppervlakte gebouwgebonden buitenruimte
13 m²

Indeling

Aantal bouwlagen
2 (en 1 kelder)
Aantal kamers
4 (waarvan 3 slaapkamers)
Aantal badkamers
1 (en 1 apart toilet)

Locatie

Ligging
Aan rustige weg
Beschutte ligging
Dichtbij openbaar vervoer
Nabij snelweg
Open ligging

Tuin

Type
Achtertuin
Oriëntering
Oosten
Heeft een achterom
Ja
Staat
Goed onderhouden

Energieverbruik

Energielabel
E

CV ketel

CV ketel
Remeha Tzerra Ace HR
Warmtebron
Gas
Bouwjaar
2021
Combiketel
Ja
Eigendom
Eigendom

Uitrusting

Aantal parkeerplaatsen
3
Aantal overdekte parkeerplaatsen
1
Warm water
CV-ketel
Verwarmingssysteem
Centrale verwarming
Open haard
Keukenvoorzieningen
Inbouwapparatuur
Badkamervoorzieningen
Douche
Wastafel
Wastafelmeubel
Parkeergelegenheid
Vrijstaande stenen garage
Heeft een balkon
Ja
Heeft een open haard
Ja
Tuin aanwezig
Ja
Heeft een garage
Ja
Heeft schuur/berging
Ja

Kadastrale gegevens

Kadastrale aanduiding
Barendrecht D 9906
Perceeloppervlakte
36 m²
Omvang
Geheel perceel
Eigendomsituatie
Eigen grond
Kadastrale aanduiding
Barendrecht D 5406
Perceeloppervlakte
113 m²
Omvang
Geheel perceel
Eigendomsituatie
Eigen grond
Kadastrale aanduiding
Barendrecht D 5405
Perceeloppervlakte
172 m²
Omvang
Geheel perceel
Eigendomsituatie
Eigen grond