Open huis: 28 maart 11:00 - 15:00
Koop:Kilweg 15, 3295 KC 's-Gravendeel - Foto
+60

Kilweg 15 3295 KC 's-Gravendeel € 539.000,- k.k.

  • Woonhuis
  • 6 kamers
  • 5 slaapkamers
  • 1 badkamer
  • Bouwjaar 1967
  • 324 m² perceeloppervlakte
  • 117 m² gebruiksoppervlakte
  • Gemeubileerd
  • B Energielabel B

Beschrijving

Open Huis: Deze woning doet mee aan de Landelijke Open Huis dag. Op zaterdag 28 maart 2026 kunt u deze woning bezichtigen, tussen 11.00 en 15.00 uur. De eigenaar zal u ontvangen. De makelaar is niet aanwezig op het Open Huis, maar is wel bereikbaar die dag, tot 22.00 uur.

WOW

Alleen al voor het uitzicht op die bedrijvige Dordtse Kil 'zou je het doen'. Met bijna 35 jaar ervaring in het makelaars vak ben je wel wat gewend zou je zo zeggen, maar plekjes en uitzichten als hier, dat went nooit. Je staat er versteld van het formaat en de hoeveelheid schepen dat hier voorbijkomt.

Het is 1 groot levend schilderij dat nooit verveelt. Hier zie je vanuit je woonkamer of vanaf het balkon aan voorzijde elke morgen de zon op komen over de rivier, aan achterzijde kunt u genieten van de ondergaande zon!

Maar er is meer! Deze heerlijk ruime drive-in woning met 5 slaapkamers is gebouwd in 1967 en werd in 2020 volledig gemoderniseerd door een ambachtslieden en aannemers (de muur tussen woonkamer en keuken werd verwijderd, er werd een nieuwe Bruynzeel inbouwkeuken geplaatst, de wanden werden gestuukt, de badkamer vergroot en vernieuwd, de trappen werden vervangen, er werden nieuwe radiatoren in de woonkamer, hal en badkamer geplaatst, de meterkast werd vernieuwd evenals de water- en elektraleidingen.

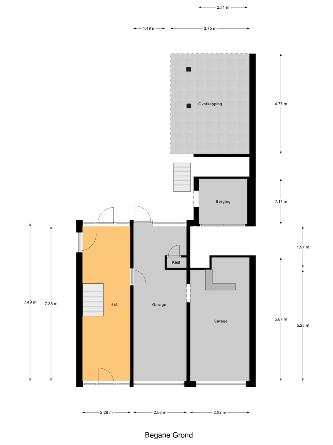
De woning is voorzien van maar liefst 2 inpandige garages (samen 36 m²), de grond voor die garages is door mijn opdrachtgevers bijgekocht, dus u kunt de garages ook gebruiken om lekker te klussen, of uw boot/motor(verzameling)/oldtimer/aanhanger te stallen en de grond voor de garages gebruiken om te parkeren (er zijn overigens ook nog een behoorlijk aantal openbare parkeerplaatsen op het plein).

De bruto inhoud is 508 m³, de gebruiksoppervlakte wonen 117 m² (exclusief gezamenlijke entree/hal en trappenhuis en exclusief garages), de overige inpandige ruimte 36 m², de gebouwgebonden buitenruimte 14 m².

Dan hebben we ook nog een bijna 30 meter diepe en goed verzorgde achtertuin, gelegen op het westen. Hier vindt u de hele dag een plekje in de zon. En wanneer u een beschut plekje prefereert, dan is daar al een heerlijke overkapping voor geplaatst in de tuin. De totale perceelgrootte maar liefst 342 m² eigen grond!!

Het bestaande Energielabel - door de vorige eigenaar aangeleverd voor de aankoop in 2020 - vertoont de letter B. Mijn opdrachtgever hebben nadien - in 2022 - 11 zonnepanelen (415 WP elk) laten leggen op het dak. De Nefit HR combiketel stamt uit 2017. Er is sprake van gevelisolatie en (op 1 slaapkamer na) overal dubbele beglazing, grotendeels in kunststof kozijnen. Het buitenschilderwerk aan de houten kozijnen is in 2025 uitgevoerd door een professionele schilder.

Dat de woning aan de buitenrand van het dorp is gelegen, dat is niet vermeldenswaardig, dat had u al lang op de foto's gezien, maar dat het maar 5 minuten lopen en 2 minuten fietsen is naar de winkels en 2 minuten lopen naar de sportfaciliteiten is minder zichtbaar. Met de auto rijdt u in 2 minuten naar de A16/N3, in nog geen 10 minuten naar die prachtige historische binnenstad van Dordrecht en in 20-25 minuten naar Rotterdam en Breda. En voor de hondenliefhebber (en hun trouwe viervoeter) is het elke dag weer een feest, om langs die mooie levendige rivier te wandelen. Kortom... voorzieningenniveau uitstekend, bereikbaarheid idem.

Dan hebben we ook nog eens een heerlijk ruim en speels ingedeeld huis. 'nummer 15 en 17' hebben een gezamenlijke entree met toegang tot de garages en een trapopgang, naar de tweede verdieping, waar nummer 17 aan de linkerzijde de ingang heeft en nummer 15 aan de rechterzijde.

Het lijkt een tikkie apart om de indeling te beginnen op de tweede verdieping, maar in dit geval is dat wel het meest logisch! De tweede verdieping is de woonverdieping, die is als volgt ingedeeld: entree, hal met toilet en trap naar de slaapetages (de eerste en derde verdieping) en een mooie stalen schuifdeur naar die heerlijke bijna 7 meter brede (683 x 385) woonkamer met schuifpui naar het balkon en toegang tot de open keuken (359 x 329/230) met fraaie – in 2020 vernieuwde – inbouwkeuken v.v. apparatuur. Woonkamer en keuken samen zijn ca. 33 m² groot, het voelt echter veel groter door dat magnifieke uitzicht.

Op de eerste etage bevinden zich een overloop, drie prima slaapkamers (380 x 338, 356 x 333 en 369 x 221 met toegang tot het balkon, groot 360 x 201 met trap naar de tuin) en de in 2020 vernieuwde moderne badkamer (310 x 163) met inloopdouche, tweede toilet en badkamermeubel met dubbele wastafel.

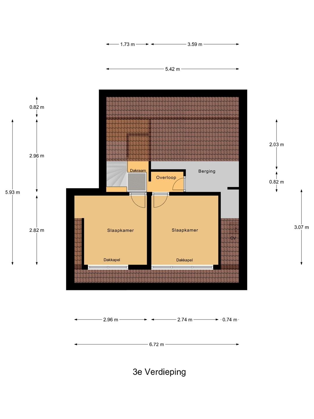
Op de derde verdieping, die vergoot is d.m.v. het realiseren van een dakopbouw, bevinden zich een overloop, bergruimte en de vierde EN vijfde slaapkamer (307 x 274 en 296 x 282, beide met dakkapel).

En om het dan helemaal onlogisch te maken.. op de begane grond had u reeds gelezen over de gedeelte entree en de garages. De ene garage is d.m.v. een doorgang bereikbaar vanuit de andere garage. Aansluitend aan de meest rechtse garage bevindt zich een berging met een loopdeur naar die zonnige mooie tuin.

Vanwege de lokroep van de zon en het goede leven is deze unieke woning nu op de markt, de kans dat er binnenkort weer één te koop komt is bijzonder klein, mensen wonen hier graag, wonen hier fijn en wonen hier meestal heel lang en gelukkig!

Kaart

Kenmerken

Overdracht

Referentienummer
07093
Vraagprijs
€ 539.000,- k.k.
Inrichting
Optioneel
Aanvaarding
In overleg
Aangeboden sinds
Donderdag 18 december 2025
Laatste wijziging
Vrijdag 20 maart 2026

Bouw

Type object
Woonhuis, eengezinswoning, tussenwoning, driveinwoning
Soort bouw
Bestaande bouw
Bouwperiode
1967
Dakbedekking
Dakpannen
Type dak
Zadeldak
Isolatievormen
Spouwmuren

Oppervlaktes en inhoud

Perceeloppervlakte
324 m²
Woonoppervlakte
117 m²
Inhoud
508 m³
Oppervlakte overige inpandige ruimten
36 m²
Oppervlakte gebouwgebonden buitenruimte
14 m²

Indeling

Aantal bouwlagen
4
Aantal kamers
6 (waarvan 5 slaapkamers)
Aantal badkamers
1 (en 1 apart toilet)

Locatie

Ligging
Aan rustige weg
Aan water
Dichtbij openbaar vervoer
In woonwijk
Nabij school
Nabij snelweg
Open ligging
Vrij uitzicht

Tuin

Type
Achtertuin
Oriëntering
West
Staat
Goed onderhouden

Energieverbruik

Energielabel
B

CV ketel

CV ketel
NEFIT HR
Warmtebron
Gas
Bouwjaar
2017
Combiketel
Ja
Eigendom
Eigendom

Uitrusting

Aantal parkeerplaatsen
4
Aantal overdekte parkeerplaatsen
2
Warm water
CV-ketel
Verwarmingssysteem
Centrale verwarming
Badkamervoorzieningen
Dubbele wastafel
Inloopdouche
Toilet
Wastafelmeubel
Parkeergelegenheid
Inpandige garage
Heeft een balkon
Ja
Tuin aanwezig
Ja
Heeft een garage
Ja
Heeft rolluiken
Ja
Heeft schuur/berging
Ja

Kadastrale gegevens

Kadastrale aanduiding
's-Gravendeel F 5011
Perceeloppervlakte
64 m²
Omvang
Geheel perceel
Eigendomsituatie
Eigen grond
Kadastrale aanduiding
's-Gravendeel F 3581
Perceeloppervlakte
260 m²
Omvang
Geheel perceel
Eigendomsituatie
Eigen grond
Open huis 28 maart 11:00 - 15:00